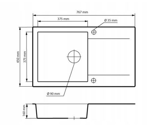
Gránit mosogatótálca NERO Gold + kihúzható zuhanyfejes Shower csaptelep + dugókiemelő (matt fekete)
60 800 Ft
